Honesty. Integrity. Quality.
Our mission is to build lasting value through craftsmanship rooted in honesty, integrity, and quality. We’re committed to transparent communication, meticulous attention to detail, and delivering results that stand the test of time—earning the trust of every client we serve.
Need more information?
About Us
Who are you hiring?
Laurentide Builders was established in 2025, backed by leadership that has experience working in industrial construction for large national general contractors for 13+ years. We have been raised on a foundation of integrity and honesty that we strive to achieve in every project. We are passionate about our work and love to be problem solvers.
What is our experience in construction?
While not under the Laurentide Builders name, we have managed over $500 million in work in place in the industrial and commercial space managing complex and large scale construction projects. Our background is working with clients on taking ideas and turning them into reality by working through conceptual design. Most of our experience is in a design-build setting, coordinating with architects and engineers on detailed design, as well managing subcontractors on execution of the project.
What types of services and construction do you do?
We provide full-service general contracting with a foundation built in design-build industrial construction. Our expertise spans commercial, retail, industrial, and residential projects, delivering efficient, cost-conscious solutions from concept through completion.
Where did Laurentide come from?
Our founder, Jeremy Host, was born and raised in Minnesota, traveled throughout the country for the beginning decade of his career but was always drawn back to the Midwest. We wanted our company to identify with those roots and values. Minnesota and lakes are synonymous with each other, Laurentide is the name of the ancient ice sheet that created our beautiful lakes that we adore so much. Beyond the lakes, Minnesota is a place where we value personal relationships, honesty, integrity, and a high quality of life. We want to bring those same qualities to each project we are a part of.
Leadership
Jeremy Host
President
Services
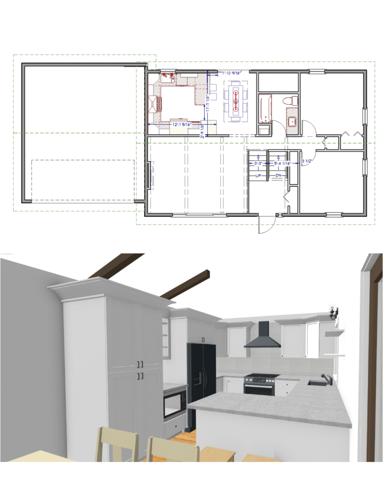
Design Services
While we are not licensed architects, we utilize advanced design software that allows us to layout floor plans, develop detailed designs, and create realistic 3D renderings of your vision. This technology helps you visualize your project before construction begins, ensuring every detail aligns with your goals, style, and budget. We also partner with highly qualified and licensed architects to provide one point of contact throughout the design process.
Construction Services
We manage your construction project from initial concept to final completion with hands-on, fully involved project management. Our team oversees every detail—from scheduling and budgeting to quality control and communication—ensuring your project is delivered on time, on budget, and to the highest standards of craftsmanship
Industries Served
We are fully licensed and insured in the state of Minnesota, providing peace of mind that your project is in qualified hands. Whether it’s an interior renovation, addition, or ground-up new construction, our team delivers high-quality results with integrity and precision. We pride ourselves in reliable communication, accurate budgeting, and efficient project execution to maximize returns and long-term value.
Process
Project Definition
During the project definition stage, we work closely with you to clarify goals, establish budgets, and outline an initial scope of work. We discuss design related elements, constructability, and budgetary constraints to ensure we are able to meet your end goals.
Design
This is where your vision truly starts to take shape! We develop detailed designs that include layouts, renderings, and creative concepts, giving you a clear visual representation of your project before construction begins.
Contract
Now that your dream project is fully designed, it’s time to make it official. We’ll turn your approved design into a detailed scope of work, cost breakdown, and contract—clearing the way to begin permitting and construction.
Permitting
We will work with the local municipality to secure the required permitting to begin the construction of your project. This varies from project to project based on complexity of the project. Laurentide Builders handles all of the communication, applications, and reviews to streamline this process.
Project Execution
The real work begins as we bring to life the project defined in the earlier stages. Our team manages every aspect of construction with precision and transparency, ensuring the highest standards of craftsmanship, quality installation, and on-time completion. Throughout the process, we maintain open communication so you’re confident in each step from start to finish
Completed Projects
Design
Construction
After
